50 Madison Ave, Montclair – SOLD!
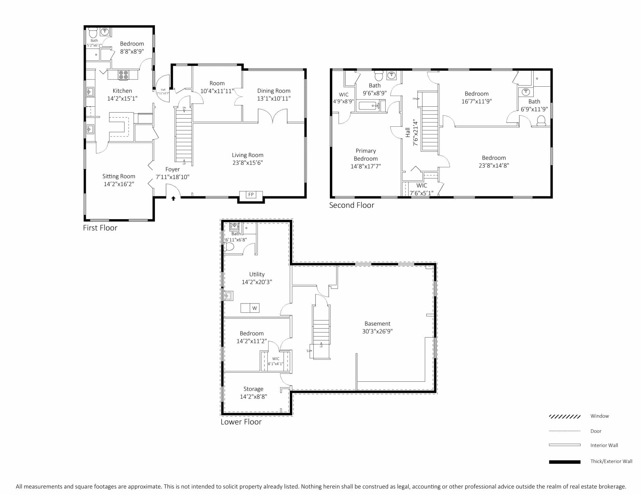
If you are looking for a light-filled home with large scale rooms and amazing flow – this is it! Welcome to 50 Madison, a unique center hall colonial perched on a quiet corner, waiting for its next owners. Upon entering the original leaded glass front door you’ll notice the stately, wide staircase and generous spaces. To your left is a beautiful dining room with original molding and easy access to the kitchen. On your right, a cozy wood burning fireplace and oversized windows in the large living room provide an ideal space to host. Off the living room and through French doors you’ll find a beautiful light-filled den, plus an additional space with original built-ins – perfect as an office or breakfast room. The flow continues to the charming yet spacious kitchen featuring marble counters and backsplash, an abundance of cabinet storage, dedicated pantry, and walnut topped breakfast bar. A convenient guest or au pair suite with it’s own private bath is situated at the back of the house along with easy access to garage and patio.
On the second floor, everyone gets a large bedroom and good sized closets! Relax in the primary bedroom with double exposure for extra light, and luxuriate in the spacious en-suite bath. The two additional bedrooms are generously proportioned and feature Jack-and-Jill bath. Newer windows on the second floor are juxtaposed nicely by original details including bedroom sconces and built-in linen closet. Well maintained original hardwood floors are featured throughout.
Not to be forgotten, the large basement boasts high ceilings, loads of storage, full bath, laundry room and large recreation area… so much potential! Outside, enjoy the front patio for sipping morning coffee or the partially fenced side yard with additional patio for play or hosting. A two car garage with loft provides extra storage.
Conveniently located near Nishuane Park, the shops and restaurants along Bloomfield Avenue and several train stations for an easy commute to NYC! Don’t miss the opportunity to make this beautiful Montclair house your home!
50 Madison Home Improvements
2019:
- 240 outlet in garage for electric charging
2020:
- 2 new garage door openers
2023:
- New roof
2024:
- New Exterior Paint Job
Appliances replaced within the last 5 years
- Gas range/oven
- Refrigerator
- Dishwasher
- Washer
- Dryer
- Lawn – Carlos Sija Landscaping – (201) 640-0460
- Gutters – Nick Kosh – (973) 226-3322

Dear Future Owners,
When we were looking to relocate 6 years ago, Montclair quickly rose to the top of our short list for its nice combination of leafy suburb and vibrant town. As we settled into our house, 50 Madison Avenue quickly felt like home. We have really enjoyed raising our family here and loved the conveniences of the neighborhood.
Since my wife commutes into NYC and I work from home, this location is very optimal for both options. There are three stations nearby for a short train ride into NYC. There is also a deluxe express commuter bus with a stop in front of the downtown YMCA. As for working remotely, the neighborhood has great cell reception and the house has strong WiFi on all 3 floors. If you prefer to drive, the Garden State Parkway and Interstate 280 are easily accessible.
Just a short 2 block walk takes you Orange Road where you can find a bank, convenience store, dry cleaners, liquor store and a few casual food spots including a coffee shop and pizza place. We shop for groceries at 2 nearby Whole Foods. Other options like Kings, Trader Joe’s and Acme are just a short drive away. There is also a weekly Farmer’s Market that makes for an enjoyable way to spend Saturday morning, especially for the fresh produce and dog watching.
The Clairidge Theatre shows both first run movies and hosts the annual Montclair Film Festival, hosted by Steven Colbert. We also enjoy going to concerts at the Wellmont, a venue that draws popular live bands as well as local acts. If you look hard enough, you can even find an underground punk rock club downtown. Varied dining options, from fine to casual, are a definitive draw for us as well. Even our friends in nearby towns often suggest meeting up in a Montclair restaurant. Whatever type of food that you may be craving, you can usually find a restaurant that serves it. You can easily spend a weekend on bustling Bloomfield Avenue and still not exhaust all there is to see and do.
If you like the outdoors, there are 3 parks within walking distance with ball fields, running tracks and even a pool. My wife and I like the hiking/running trails in Eagle Rock Reservation and the New York City skyline views from the top. Even though Montclair is a city, we do get our fair share of wildlife. In our neighborhood, we frequently see deer, rabbits and a wide variety of birds including cardinals, blue jays and hawks.
One of the advantages of a corner house is that you really live on 2 streets and get to enjoy the neighbors from both sides. The Madison Avenue Civic Group hosts a block party every year and the residents on Gardiner Place also has one every 2 years. Madison Avenue is a wide street but it is not a busy street for foot or car traffic. We mainly see parents pushing strollers, neighbors walking their dogs and kids walking to school. Our neighbors are a diverse group with a nice mix of NYC transplants, families that have lived and raised their kids here and young families just moving in.
Because are fans of older houses, we loved the old world charm of our colonial home from the wood floors and brick fireplace to the spacious rooms, wide staircase and French doors. We have many good memories from our time living here but it’s the little things we remember most like playing catch in the backyard, cultivating a flower garden, BBQing on the patio, sitting on the front porch while listening to the birds sing and washing our car together in the driveway.
We hope you find this house as charming as we have and enjoy everything that 50 Madison Avenue has to offer.
Sincerely,
The Current Homeowners
Call or email us to schedule a private showing!
tandemnj@compass.com or (973) 991-9954

























